Печь для бани Атмосфера L до 20 м³ в облицовке ПроМеталл
Не нашли нужный товар? Позвоните или напишите нам и мы обязательно подберем для Вас решение.
Договор заключается в момент оплаты Покупателем товара ТОЛЬКО в ОФЛАЙН-МАГАЗИНЕ. Делая предварительный заказ, Покупатель заверяет, что ознакомился и согласен с Политикой компании, она ему ясна и понятна.Конструкция и особенности печи
Практичная и компактная модель. Печь Атмосфера поддерживает три режима работы: "Сауна", "Хамам" и "Русская баня", и легко позволит вам менять режимы на ваше усмотрение.
Данная модель предназначена для парных размером от 12 до 20 м3. Топка печи Атмосфера изготовлена из чугуна марки ЧХ-1. Подача кислорода для горения осуществляется раздельно для нижнего и верхнего (подового) горения. Подача воды во внутреннюю каменку осуществляется через воронки заливной горловины. Печь оснащена паровой пушкой.
Модель печи в стильной и практичной облицовки из натурального камня. За счет использования несущих брусков, состоящих из цельного камня, теплоёмкость печи увеличивается на 50%. Конструкция просто собирается и позволяет легко заменить любую деталь в случае необходимости.
Облицовка из натурального камня препятствует жесткому инфракрасному излучению, передаваемому стенками топки, поэтому тепло от поверхности печи получается мягкое и ровное.
В печи предусмотрена внутренняя закрытая каменка, изготовленная из нержавеющей стали AISI 439. При добавлении воды на камни, она превращается в мелкодисперсный качественный «правильный» пар, т.к температура камней предельно высока.
Предусмотрена система "чистое стекло". Дверцу можно перевесить, для открывания справа или слева.
Дымоход и комплектующие
На печь можно установить емкостной бак или теплообменник для нагрева воды. Выберите подходящий бак в разделе баки из нержавеющей стали.
Для печи необходим дымоход диаметром 115 мм. Его можно подобрать в разделе дымоходы.
Не забудьте про огнезащиту.
Рекомендуем рассмотреть камни для бани и прочие важные мелочи.
Характеристики
|
Производитель
|
ПроМеталл (Россия) |
|
Тип наружного корпуса
|
камень |
|
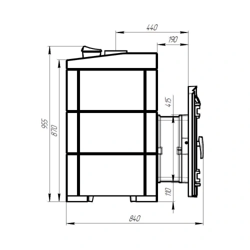
Высота, мм
|
955 |
|
Глубина, мм
|
775 |
|
Ширина, мм
|
575 |
|
Диаметр дымохода, мм
|
115/140 |
|
Вес, кг
|
368.4 |
|
Масса камней, кг
|
18-22 |
|
Дверка
|
стекло |
|
Объем парной, м³
|
12-24 |
|
Наличие закрытой каменки
|
закрытая |
|
Материал печи (топки)
|
Чугун |
Отправляем продукцию по всей территории РФ.
Ознакомиться с условиями оплаты и получения товара Вы можете на странице «Доставка и оплата».
* Рассчитывается ориентировочная стоимость доставки от ПВЗ города отправления до ПВЗ города получения.
Конечная стоимость определяется после приема груза на терминале компании и зависит от точных габаритов сборки (длина*ширина*высота, вес), типа груза (наименование товара во вложении), вида отгрузки (отгрузка курьеру или в ПВЗ), хрупкости вложения, выбора услуги страхования груза, наличия обязательной обрешетки и дополнительной упаковки, согласно условий и требований к перевозке грузов конкретной ТК.
Вы можете воспользоваться услугами монтажа купленных у нас товаров. Для этого при оформлении заказа на сайте в поле «Нужен монтаж» нужно выбрать пункт «Да».
Также по вопросам монтажа Вы можете проконсультироваться по указанным на сайте телефонам или отправить запрос через любую из расположенных на сайте форм обратной связи.
- Можно доверять! Компания «КПД» работает с 2004 года.
- Работаем только с проверенными бригадами монтажников.
- Произведем расчет и установку любого оборудования из наших магазинов.
- Гарантируем качество выполненных работ.
- Примеры наших работ (смотреть).












