Не нашли нужный товар? Позвоните или напишите нам и мы обязательно подберем для Вас решение.
Договор заключается в момент оплаты Покупателем товара ТОЛЬКО в ОФЛАЙН-МАГАЗИНЕ. Делая предварительный заказ, Покупатель заверяет, что ознакомился и согласен с Политикой компании, она ему ясна и понятна.Топка Edilkamin BLOKK 90 V BIANCO (белая футеровка, принудительная вентиляция))
Конструкция и особенности печи
В серии топок EdilKamin Blokk применяется энергосберегающая технология, которая способствует максимально эффективному горению. Подъемный механизм дверей отличается плавным бесшумным ходом. Благодаря новой системе направляющих в топках обеспечивается предельная герметичность. Ручка дверки выполнена в стильном черном цвете, она приятна на ощупь и в процессе топки остается холодной. Топки серии Blokk выполнены из стали с возможностью выбора цвета футеровки-черная или белая. В качестве опции можно выбрать адаптер притока воздуха на горение. Комплектация топок предполагает блок автоматического управления и пульт ДУ. Вместе с моделями можно выбирать удобные доборные рамки для надежной установки в фальшкороб. В комплектацию топок входят 4 ножки с возможностью регулировки и 4 колесика для удобной транспортировки.
Дымоход, огнезащита и комплектующие
Для топки необходим дымоход диаметром 180мм. Его можно подобрать в разделе дымоходы.
Для любой топки необходимо предусмотреть облицовку. Рекомендуем использовать силикат кальция.
Также могут понадобиться важные мелочи.
|
Производитель
|
EdilKamin (Италия) |
|
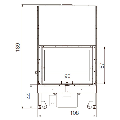
Высота, мм
|
1890 |
|
Глубина, мм
|
530 |
|
Ширина, мм
|
1080 |
|
Диаметр дымохода, мм
|
180 |
|
Вес, кг
|
360 |
|
Материал печи (топки)
|
сталь |
|
Вид топки (способ открывания)
|
подъемный механизм |
|
Отапливаемый объем
|
469 м3 |
|
Тип и форма стекла
|
прямое |
Отправляем продукцию по всей территории РФ.
Ознакомиться с условиями оплаты и получения товара Вы можете на странице «Доставка и оплата».
* Рассчитывается ориентировочная стоимость доставки от ПВЗ города отправления до ПВЗ города получения.
Конечная стоимость определяется после приема груза на терминале компании и зависит от точных габаритов сборки (длина*ширина*высота, вес), типа груза (наименование товара во вложении), вида отгрузки (отгрузка курьеру или в ПВЗ), хрупкости вложения, выбора услуги страхования груза, наличия обязательной обрешетки и дополнительной упаковки, согласно условий и требований к перевозке грузов конкретной ТК.
Вы можете воспользоваться услугами монтажа купленных у нас товаров. Для этого при оформлении заказа на сайте в поле «Нужен монтаж» нужно выбрать пункт «Да».
Также по вопросам монтажа Вы можете проконсультироваться по указанным на сайте телефонам или отправить запрос через любую из расположенных на сайте форм обратной связи.
- Можно доверять! Компания «КПД» работает с 2004 года.
- Работаем только с проверенными бригадами монтажников.
- Произведем расчет и установку любого оборудования из наших магазинов.
- Гарантируем качество выполненных работ.
- Примеры наших работ (смотреть).





