Не нашли нужный товар? Позвоните или напишите нам и мы обязательно подберем для Вас решение.
Договор заключается в момент оплаты Покупателем товара ТОЛЬКО в ОФЛАЙН-МАГАЗИНЕ. Делая предварительный заказ, Покупатель заверяет, что ознакомился и согласен с Политикой компании, она ему ясна и понятна.Печь-камин Мета-Бел Амур 9
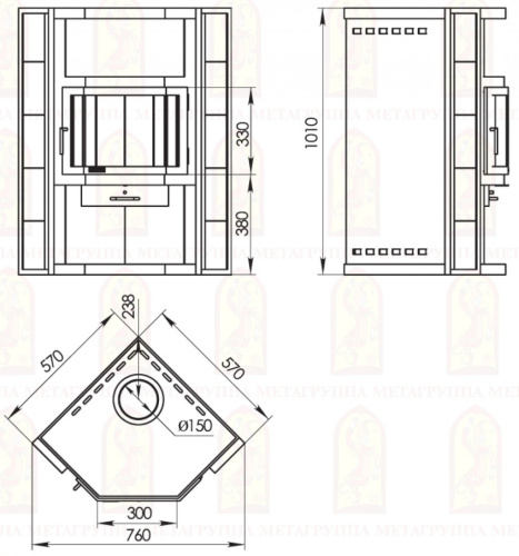
Конструкция и особенности печи
Печь-камин Мета-Бел это универсальный отопительный прибор, не требующий дополнительной облицовки и фундамента. Он способен обеспечить не только полноценный обогрев помещения, но и в зависимости от модели выполнять различные дополнительные функции. Печь идеально впишется в интерьер дома или дачи. Если вас интересуют качественные, функциональные, легкие в установке и эксплуатации печи по демократичной цене, печи торговой марки Мета-Бел станут идеальным выбором.
Преимущества данной модели Амур 9 - угловая модель с большим призматическим остеклением, футеровка из нового материала. Идеально подходит для обогрева небольшого помещения площадью 30-70 м2.
Система «медленное горение» - при периодическом подкладывании топлива печь работает до 6 часов.
Система «вторичный дожиг» - в камеру сгорания поступает дополнительно кислород для сжигания частиц несгоревшего топлива ,что не только увеличивает КПД камина ,но и сокращает выброс токсичных газов в окружающую среду.
Дымоход, огнезащита и комплектующие
Для печи необходим дымоход диаметром 150 мм. Его можно подобрать в разделе дымоходы. Рекомендуем обратить внимание, что первыми элементами от печи могут быть дымоходы черного цвета из котловой стали,которые можно подобрать в разделе дымоходы КПД
Не забудьте про огнезащиту стен.
Под печь необходимо предусмотреть негорючее основание. Рекомендуем использовать листы под печь черного цвета.
Также могут понадобиться важные мелочи.
|
Производитель
|
Мета-Бел (Беларусь) |
|
Высота, мм
|
1020 |
|
Глубина, мм
|
630 |
|
Ширина, мм
|
760 |
|
Диаметр дымохода, мм
|
150 |
|
Выход дымохода
|
сверху |
|
Вес, кг
|
135 |
|
Материал облицовки (корпуса)
|
кафель, керамика, изразец |
|
Материал печи (топки)
|
сталь |
|
Мощность, кВт
|
9 |
|
Отапливаемый объем
|
180 м3 |
Отправляем продукцию по всей территории РФ.
Ознакомиться с условиями оплаты и получения товара Вы можете на странице «Доставка и оплата».
* Рассчитывается ориентировочная стоимость доставки от ПВЗ города отправления до ПВЗ города получения.
Конечная стоимость определяется после приема груза на терминале компании и зависит от точных габаритов сборки (длина*ширина*высота, вес), типа груза (наименование товара во вложении), вида отгрузки (отгрузка курьеру или в ПВЗ), хрупкости вложения, выбора услуги страхования груза, наличия обязательной обрешетки и дополнительной упаковки, согласно условий и требований к перевозке грузов конкретной ТК.
Вы можете воспользоваться услугами монтажа купленных у нас товаров. Для этого при оформлении заказа на сайте в поле «Нужен монтаж» нужно выбрать пункт «Да».
Также по вопросам монтажа Вы можете проконсультироваться по указанным на сайте телефонам или отправить запрос через любую из расположенных на сайте форм обратной связи.
- Можно доверять! Компания «КПД» работает с 2004 года.
- Работаем только с проверенными бригадами монтажников.
- Произведем расчет и установку любого оборудования из наших магазинов.
- Гарантируем качество выполненных работ.
- Примеры наших работ (смотреть).




